Caldwell B

Information

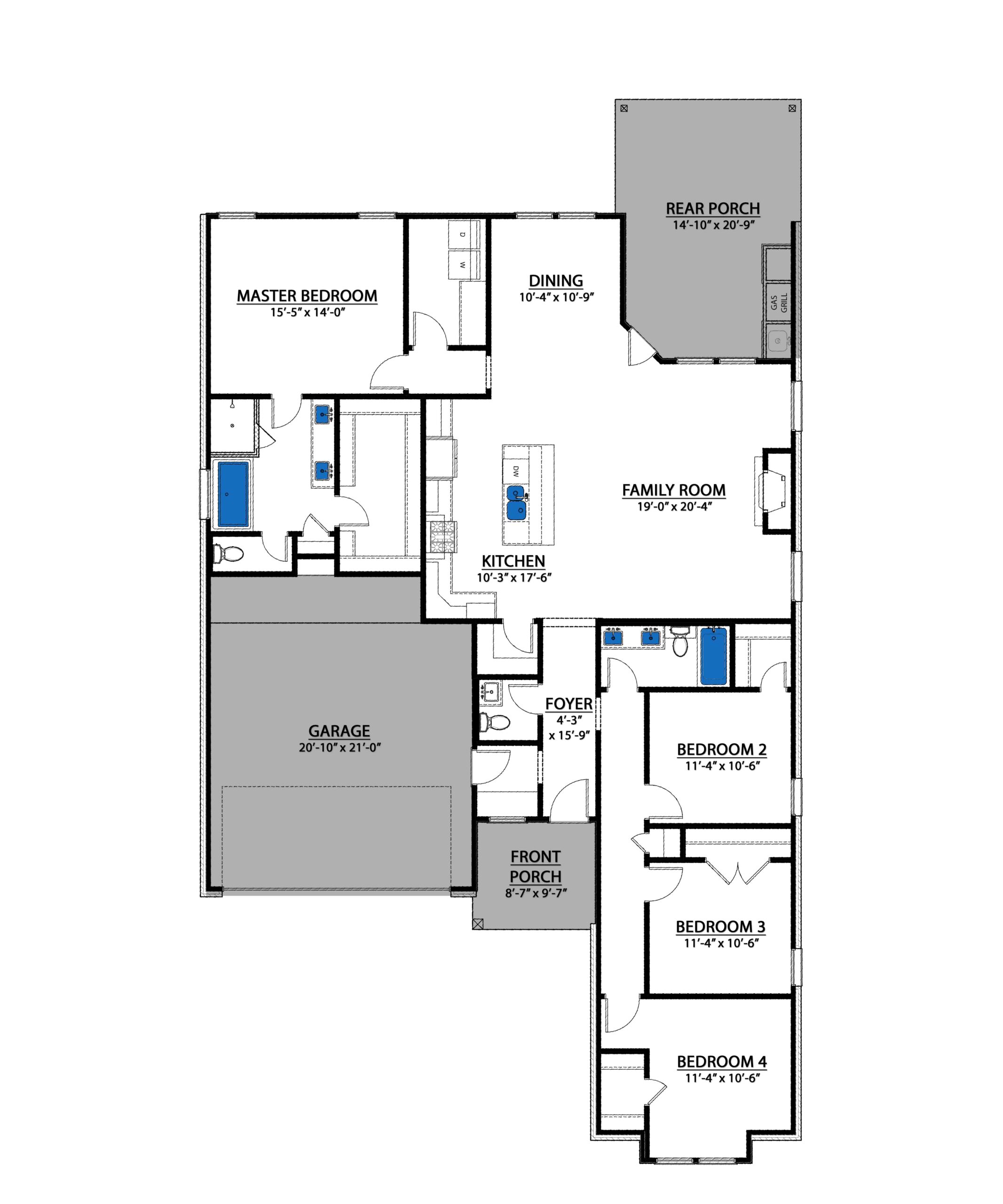
4 Bed
2.5 Bath
2,185 Sq. Ft.

AVAILABLE IN:

This home is currently not available in any of our current communities. Call us at 225.306.6093 to discuss options.

About This Floorplan

The Caldwell B by A.P. Dodson is a single-story home delivering 4 bedrooms and 2.5 bathrooms across 2,185 sq. ft. The open layout features a large kitchen with island and 11' ceilings that seamlessly connects to the primary living and dining areas. The kitchen has a large island and pantry perfect for storing all your essentials. The generous Owner's Suite includes a luxury bath with double vanities and a massive walk-in closet. Bedrooms 2, 3, and 4 share a bath in the hall. A. powder bath is located off the foyer for guests. This home also includes a 2-car garage with storage ledge, a dedicated utility room, and large rear porch perfect for outdoor living.

FLOORPLAN

Caldwell B floor plan by AP Dodson Home Builders – 2,185 sq ft single-story home featuring 4 bedrooms, 2.5 bathrooms, open-concept kitchen and living area with island, private master suite with walk-in closet and bath, dining room, mudroom, rear porch, front porch, storage space, and 2-car garage layout.

VIEW MORE HOMES